✨本山南パークマンション✨ 価格1,290万円で手に入るフルリノベ済み住まい。南向きの明るいLDK、使い勝手の良いシステムキッチン、高温差し湯付きオートバス完備で毎日の暮らしも快適。スーパー徒歩圏内、3駅利用可の利便性も魅力。築古でも、余計なコストを省き、室内は完全リノベーション済。瑕疵担保責任2年付きで安心して新生活スタート可能。エレベーターなしのシンプル造りだから管理費もお得。理想の暮らしを自分の手で実現できる一邸です。
■ 本山南パークマンション フルリノベ仕様書
物件基本情報
- 価格:1,290万円
- 所在:神戸市東灘区本山南町
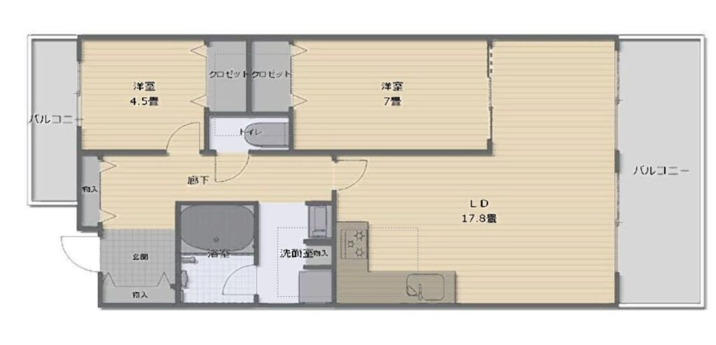
- 専有面積:約59㎡(2LDK)
- 築年:1984年
- 階数:低層マンション(エレベーターなし)
- 方角:南向き
フルリノベーション内容
- 間取り変更:3LDK → 2LDK、LDK拡張(15〜18帖)
- フローリング全張替え
- クロス張替え、壁・天井補修
- 建具交換(扉・収納等)
- システムキッチン新設(収納充実・使いやすいレイアウト)
- 浴室フルリフォーム高温差し湯付きオートバス 追い焚き機能付き
- トイレ新設(温水洗浄便座)
- 洗面化粧台交換
設備・仕様
- オートバス機能(高温差し湯)
- システムキッチン
- 南向きの明るい室内
- 給湯器新設
- 全居室照明器具付き(場合による)
周辺環境・利便性
- スーパー徒歩圏内
- 3駅利用可能(通勤・通学・お出かけ便利)
- バス停近く
安心ポイント
- 瑕疵担保責任:主要構造部分・雨漏り等対象 2年間




